建虎网
节省时间成本,让工作学习变得更高效!www.jianhuw.com
用户中心
|
上传资料
|
签到有奖
|
网站地图
搜索
首页
建筑
技术管理
施工方案
技术标书
工艺工法
技术交底
施工组织设计
建筑资料
建筑论文
建筑设计
标准规范
计算/测量
常用软件
建筑图纸
建筑图集
cad教程
方案文本
质量管理
质量管理
课件/QC
质量控制
工程创优
应急预案
验收资料
安全文明
工程图纸
别墅建筑
住宅建筑
工业建筑
办公建筑
景观古建
医疗建筑
规划图纸
商业建筑
节点详图
工程管理
项目管理
总结报告
进度计划
施工日志
会议纪要
竣工资料
装饰
装饰装修
装修图纸
设计资料
方案图纸
节点详图
其他资料
cad图块
路桥
施工资料
施工方案
工艺工法
技术交底
市政资料
施工组织设计
安全文明
路桥资料
路桥设计
路桥图纸
路桥规范
路桥软件
计算测量
其他资料
项目管理
路桥表格
项目管理
质量创优
总结报告
技术标书
课件/QC
路桥论文
结构
结构工程
结构施工
结构图纸
设计资料
结构软件
基础表格
结构论文
技术交底
结构图集
结构规范
电气
电气资料
技术标书
电气资料
安全文明
电气施工
课件/教程
标准图集
总结报告
电气论文
电气交底
合同表格
电气软件
图纸资料
电气图纸
住宅建筑
教育建筑
公共建筑
工业建筑
商业建筑
市政电气
其他图纸
原理图
造价
土建造价
安装造价
施工合同
常用表格
地方定额
政策法规
造价管理
清单计价
招标评标
商务投标
造价软件
其他造价
决算结算
预算概算
暖通
暖通图纸
暖通施工
暖通论文
暖通图集
设计/课件
暖通交底
其他资料
暖通资料
暖通软件
景观
规划设计
设计文本
景观模型
设计说明
景观图纸
景观实例
园林资料
节点详图
施工资料
其他资料
景观图块
课件讲稿
给排水
给排水工程
给排水资料
给水软件
给水论文
给排水施工
给水标准图集
课件/教程
给排水图纸
给排水图纸
住宅给水
别墅给水
消防系统
泵房泵站
给水处理
大样图
市政给水
医疗给水
办公楼给水
水景
污水处理
水利
水利工程
水利表格
技术标书
质量安全
其他资料
水利图集
水利资料
水利图纸
水利图纸
码头
堤防水库
泵站闸门
大坝厂房
钢管前池
灌排节水
全套图纸
其他图纸
水利软件
水利软件
勘测软件
水文水力
水工设计
预算造价
结构设计
CAD相关
监理
监理大纲
监理月报
监理评估
监理表格
旁站监理
监理细则
监理规划
其他资料
监理资料
监理总结
岩土
岩土施工
质量控制
岩土论文
岩土图纸
岩土规范
岩土软件
地质勘察
岩土交底
其他资料
岩土工艺
岩土资料
素材
三维模型
草图大师模型库
材质贴图
配景素材
其他素材
3Dmax/SU教程
首页
>
>
建筑工程
>
建筑图纸
>
别墅建筑
> >
现代风格二层别墅设计图带阁楼2
现代风格二层别墅设计图带阁楼2.dwg
更新时间:
2024-01-23
下载权限:
免费会员
文件大小:
0.33 MB
文件类型:
.dwg
浏览次数:
上传会员:
网友上传
所属栏目:
别墅建筑
进入下载页
资料简介
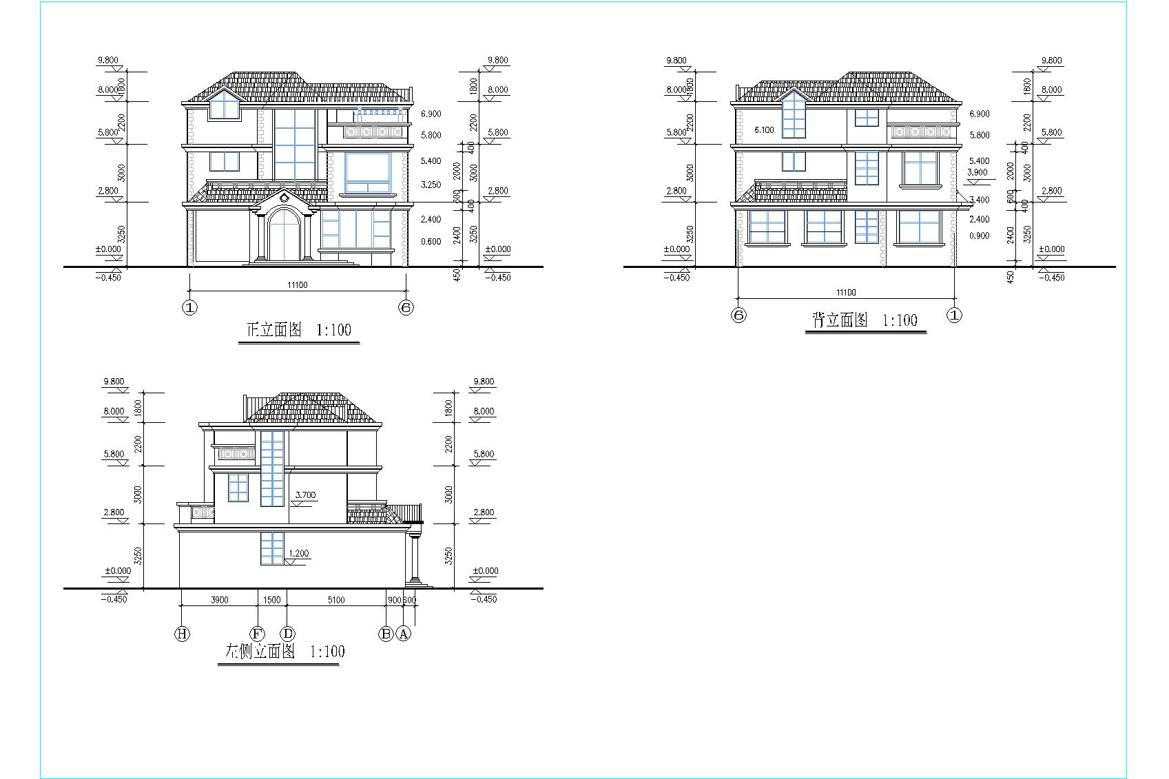
现代风格二层别墅设计图包括:一层平面图、二层平面图、阁楼平面图、屋顶平面图、四侧立面图、剖面图。
下载地址
前往下载
相关资源推荐
现代收口节点_金属收边条节点_铝合金收边条节点_收口节点_金属型材_收口线
28448KB
农村自建房二层 (18.5x11.8米) 新中式乡村别墅
29.9MB
现代医疗建筑综合施工技术与总承包管理
161MB
现代预应力建筑钢结构的应用与发展
2472KB
现代鲁棒控制理论与应用
46001KB
现代图书馆建筑设计
176MB
点击排行
新农村建设之《农村自建房设计图
农村自建房二层 (18.5x11.8米)
萨伏伊别墅剖面图,平面图,立面图
三层别墅设计图
8套四层以上别墅设计图
别墅总平面图
高级别墅图
福建***别墅水施全图
一套别墅建筑施工图纸
全套三层豪华别墅设计图纸
热点推荐
南块 浦东世纪花园2期归档全套
35个经典别墅设计方案图
温榆河别墅建筑方案设计图
重庆汇景台二期别墅方案设计图
北京丽高花园别墅设计图全套(
深圳观澜高尔夫别墅建筑方案图